TERÉZ KÖRÚT MELLETT, FELÚJÍTOTT, BERENDEZETT, GYÖNYÖRŰ DIZÁJN LAKÁSOK
Eladó egy teljesen felújított, duplex lakás Budapest belvárosában!
Teréz körúttól egy sarokra a Szondi utca Eötvös utca sarkán található az ingatlan. Jól karbantartott a ház kívül és belül is. A lakás a magasföldszinten van. 3 lakás utcai (de több mint 2 méter a járdától az ablak alja)
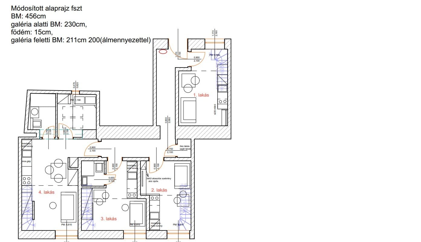
Egy nagy lakásból lett kialakítva 3 kisebb és egy nagyobb duplex lakás. Belmagasságok galéria alatt 230cm, felette 200cm.
A képek a TimeLessDesign lakberendezői által készített látványtervek, de a lakások tényleges kialakítást mutatják! Teljesen berendezett feldekorált állapotban adjuk át őket. A lakások teljes felújításon mennek át. Fűtése elektromos padlófűtés. A 4 lakás használati megosztással lesz átadva, villanyórák és vízórák külön lakásonként alakítjuk ki. A felújítás nagyon magas minőségű!
Mindegyik lakás duplex, a szint/galéria szerkezete komoly fémszerkezet. Nem recseg nem ropog, statikus tervei alapján készülnek. Lépcsők gipszbetonból készülnek. A lakások födémje pinceszintig vissza van bontva és a megfelelő vízszigeteléssel ellátott rétegrendet kap.
A fűtésről elektromos padlófűtés fog gondoskodni (BVF), komfort érzetet pluszban hűtő-fütő klíma is növeli.
Lakások:
Jelen lakás:
3-as lakás: 24,79m2 (14,82m2 alapterület + 9,97m2 galéria) 42.900.000 Ft (földszinten nappali, étkező, konyha, fürdőszoba, emeleten hálószoba, gardrób rész)
1-es lakás: 25,88m2 (12,39 m2 alapterület + 13,49m2 galéria) 44.900.000 Ft (földszinten nappali, étkező, konyha, emeleten fürdőszoba, hálószoba, gardrób rész, dolgozó rész)
2-es lakás: 28,61m2 (12,46m2 alapterület + 16,15m2 galéria) 49.000.000 Ft (földszinten nappali, étkező, konyha, emeleten fürdőszoba, hálószoba, gardrób rész)
4-es lakás: 49,2m2 (29,6m2 alapterület + 19,6m2 galéria) 78.900.000 Ft (földszinten nappali, étkező, konyha, fürdőszoba, hálószoba, emeleten hálószoba, gardrób szoba és fürdőszoba)
A LAKÁSOKAT ÜGYVÉDI HASZNÁLATI MEGOSZTÁSSAL LEHET BIRTOKBA VENNI!
A lakás jelenleg még nincs kész, de teljesen berendezve lesz átadva és az ár is arra vonatkozik. Várható befejezése 2026 év márciusa.
HA BEFEKTETÉSNEK VENNÉ AZ INGATLANT, PROFI INGATLANKEZELÉSRE VAN LEHETŐSÉG KORREKT ÁRON.
Referencia lakást tudok mutatni!






